Menampilkan postingan dari Oktober, 2020Tunjukkan semua
25+ Inspirasi Penting Model Jendela Kamar Tidur Minimalis

Jendela kamar tidur kecil, Jendela Kamar Tidur dalam, Model jendela kamar Minimalis, Jendela kamar Minimalis Modern, Jendela Kamar Tidur Sederhana, Model Jendela Minimalis 2021, Jendela Kamar kayu, Model Jendela Kamar Minimalis 2021, Model Jendela Minimalis 2021, Model…

22+ Inspirasi Terbaru Ukuran Jendela Aluminium Minimalis

Ukuran kusen Aluminium per batang, Detail Jendela Aluminium, Tebal kusen aluminium, Kusen Aluminium Alexindo, Ukuran Aluminium batangan, Ukuran kusen aluminium 3 inch, Detail Kusen Aluminium Dwg, Harga kusen aluminium, Kusen jendela aluminium, Ukuran kusen kayu, Kusen …

24 Jendela Kamar Depan Rumah Minimalis Konsep Top!

Jendela rumah minimalis, Model Jendela Minimalis 2021, desain jendela rumah minimalis modern minimalist design , Model jendela kamar, Model Kusen Pintu dan Jendela Minimalis Terbaru, Jendela kamar Minimalis Modern, Model Jendela Minimalis 2021, Jendela rumah modern, Mo…

Trend Masa Kini 23+ Model Jendela Minimalis

Model Jendela Minimalis 2021, Model Jendela Minimalis 2021, Model jendela kamar, Model Jendela Minimalis 2021, Jendela minimalis Aluminium, Model Pintu dan jendela Minimalis, desain jendela rumah minimalis modern minimalist design , Model jendela depan Rumah Minimalis,…

30 Inilah Teralis Jendela Besi Tempa

Window grill design india, Modern Window Grill Design, Window grill design 2021 latest, 30 Inilah Teralis Jendela Besi Tempa - Manusia sudah memanfaatkan aneka jendela besi untuk mendukung aktivitas sehari hari yang dilakukan sejak zaman dahulu. Semakin maju peradaban…

48+ Trend Masa Kini Jendela Upvc Beli Dimana

Jendela UPVC vs aluminium, Jendela UPVC Surabaya, Jendela aluminium, Harga Pintu UPVC, Harga jendela aluminium, Harga UPVC atap, Merk UPVC terbaik, Harga kusen UPVC per METER 2021, Kusen jendela UPVC, Harga kusen UPVC per batang, Harga kusen UPVC per meter 2021, Harga …

23+ Harga Jendela Sliding Upvc, Inspirasi Spesial!

Jendela UPVC vs aluminium, Harga Jendela UPVC, Jendela UPVC Surabaya, Harga jendela aluminium, Harga UPVC, Harga UPVC atap, Harga Pintu UPVC, Jendela PVC, Harga Jendela UPVC 2021, Pintu dan Jendela UPVC, Jendela geser horizontal, uPVC windows, 23+ Harga Jendela Sliding…

52+ Grendel Jendela Kuno, Trend Masa Kini!

52+ Grendel Jendela Kuno, Trend Masa Kini! - Salah faktor untuk keindahan rumah, ruang kerja atau kantor ialah di isi dengan berbagai jendela salah satunya adalah grendel jendela , tentunya haruslah jendela yang hanya kita butuhkan. Berbagai macam grendel jendela mema…

Ide Penting 26 Jendela Kayu Geser

Jendela Geser, Jendela Geser Aluminium, Jendela geser vertikal, Jendela Sliding kayu, Harga jendela Geser Aluminium, Jendela aluminium, Jendela Sliding Aluminium, Ide Penting 26 Jendela Kayu Geser - Berbicara tentang jendela kayu apik itu digunakan di rumah, kantor, r…

52 Terbaru Jendela Dapur Sederhana

Jendela dapur Geser, Jendela Dapur Kayu, Jendela Dapur Sliding, Jendela Dapur Aluminium, Ukuran Jendela Dapur, Dapur minimalis, Jendela aluminium, Jendela kamar, Ventilasi dapur, Desain dapur sempit, 52 Terbaru Jendela Dapur Sederhana - Manusia sudah memanfaatkan anek…

16 Gambar Jendela Kaca Kembang Motif Top!

Harga kaca Patri, Kaca jendela minimalis, Jendela kaca mati, Kaca grafir 3D, Gambar Kaca Cermin, Kaca inlay, Kaca Patri Gereja, Jual Kaca Patri, Kaca hias, Kaca patri adalah, Lukisan kaca, Kaca es, 16 Gambar Jendela Kaca Kembang Motif Top! - Salah faktor untuk keindah…

16 Inilah Contoh Jendela

Model jendela kamar, Model Jendela Minimalis 2021, Model Jendela Minimalis 2021, Model Pintu dan jendela Minimalis, Gambar Jendela Kayu, Harga jendela minimalis, Jendela minimalis Aluminium, Jendela kayu Minimalis, Model Jendela Minimalis 2021, Ukuran Jendela Minimalis…

24+ Model Pintu Dan Jendela Kamar Tidur, Ide Spesial!

24+ Model Pintu Dan Jendela Kamar Tidur, Ide Spesial! - Memilih jendela kamar memang tidak mudah. Selain harus mencari yang berkualitas dan menyesuaikan ruangan yang Anda gunakan. jendela merupakan salah satu bagian yang sangat berguna yang diperlukan untuk menghadirk…

25 Trend Terbaru Stiker Kaca Jendela Motif Kotak

25 Trend Terbaru Stiker Kaca Jendela Motif Kotak - Berbicara tentang stiker kaca jendela unik dan menarik itu digunakan di rumah, kantor, ruang kerja, cafe ataupun warung , memang banyak sekali pilihanya. Selain itu berbagai model terkadang dapat mengalahkan kebutuhan…

52+ Harga Jendela Kaca Sliding, Trend Masa Kini!

Jendela Sliding kayu, Jendela geser Atas, Jendela geser vertikal, Harga jendela aluminium, Jendela Sliding UPVC, Rel Jendela Geser, Jendela Swing, Jendela aluminium minimalis, Pintu Sliding, Jendela Minimalis, Pintu Sliding aluminium, Jendela geser horizontal, 52+ Harg…

29 Harga Kusen Jendela Aluminium Di Malang Paling Top!

29 Harga Kusen Jendela Aluminium Di Malang Paling Top! - Salah faktor untuk keindahan rumah, ruang kerja atau kantor adalah di isi dengan berbagai jendela salah satunya yaitu kusen jendela , tentunya haruslah jendela yang hanya kita butuhkan. Berbagai macam kusen jend…

Contoh Kusen Jendela Kamar Minimalis Jendela Terpopuler!

Model Kusen Pintu dan Jendela Minimalis Terbaru, Model Pintu dan jendela Minimalis, Model Jendela Minimalis 2021, Model Jendela Minimalis 2021, Kusen jendela aluminium, Model Jendela Aluminium rumah minimalis, desain jendela rumah minimalis modern minimalist design , K…

Trend Masa Kini 17 Tirai Jendela Minimalis

Tirai Jendela Roller Blind, Tirai jendela Kantor, Tirai Jendela Kamar, Gorden minimalis, Tirai Gulung, Tirai Jendela Kayu, Tirai Jendela Tarik, Gorden jendela minimalis 2021, Gorden Jendela Minimalis 2021, Tirai lipat, Tirai Pintu, Harga gorden, Trend Masa Kini 17 Tira…

Cara Membuat Gorden Jendela Minimalis Terbaru!

Gorden minimalis, Cara menjahit gorden spanyol, Bahan Gorden, Cara Membuat Gorden Jendela Minimalis Terbaru! - Beberapa gorden jendela untuk mengaplikasikan keindahan dan kemenyegarkanan dengan rancangan yang tepat dapat menginspirasi anda untuk memberikan gaya yang s…

22+ Inspirasi Terbaru Cara Membuat Kelambu Jendela Kamar

Cara menjahit gorden spanyol, Cara membuat tirai benang, Gorden minimalis, Cara membuat gorden, Bahan Gorden, DIY Tirai gulung, Gorden Terbaik, Toko Gorden Pasar baru, Gorden office, Toko Gorden Bogor, Gorden Jakarta, Pusat Gorden di Jakarta, 22+ Inspirasi Terbaru Cara…

Stiker Kaca Jendela Kantor Spesial!

Stiker kaca sandblast, Penutup Kaca jendela mobil, Stiker kaca jendela tidak tembus pandang, Stiker Kaca Jendela Kantor Spesial! - Bagi orang orang dengan selera yang tinggi, terkadang memilih stiker kaca jendela merupakan hal yang sangat sulit. Akan muncul banyak pem…

52+ Ukuran Kanopi Jendela Beton, Trend Masa Kini!

52+ Ukuran Kanopi Jendela Beton, Trend Masa Kini! - Bagi orang orang dengan selera yang tinggi, terkadang menentukan kanopi jendela yaitu hal yang sangat sulit. Akan muncul banyak pandangan saat memastikan kanopi jendela yang dibutuhkan dan sesuai dengan selera. Padah…

Ide Top 47 Harga Jendela Upvc Per Meter Semarang

UPVC Indonesia, IKRA UPVC, UPVC Jakarta, UPVC Jakarta Barat, Jendela Tilt and Turn, UPVC BSD, Korean uPVC Windows, Aluminium uPVC windows, Aluplast Indonesia, Ide Top 47 Harga Jendela Upvc Per Meter Semarang - Jendela merupakan bagian krusial dari sebuah ruangan atau …

Gambar Jendela Lengkung Jendela Terpopuler!

Pintu Kupu Tarung Minimalis 2021, Pintu Kupu Tarung Lengkung, Model Pintu Kupu Tarung Minimalis 2021, Model Pintu Kupu Tarung Klasik, Model Pintu Kupu Tarung 2021, Pintu Kupu Tarung Minimalis Terbaru, Pintu Jati Minimalis, Pintu Kupu Tarung kaca, Motif pintu kayu Minim…

Info Terpopuler 17+ Tirai Jendela Gambar

Tirai Jendela Kain, Tirai Jendela Gulung, Tirai Jendela minimalis, Tirai Jendela Kamar, Tirai jendela Kantor, Tirai Jendela pvc, Tirai Jendela Roller Blind, Tirai Jendela Kayu, Tirai Jendela Tarik, Gorden minimalis, Tirai Jendela Anti Nyamuk, Tirai Gulung, Info Terpopu…

Info Terpopuler 17+ Jalusi Jendela Dapur

Jendela jalusi aluminium, Jendela Jalusi Kayu, Jalusi besi, Jendela jalusi kaca, Jalusi adalah, Harga jalusi aluminium per m2, Jalusi Beton, Jalusi ventilasi aluminium, Pintu Jalusi aluminium, Jalusi minimalis, Jendela aluminium, Jendela Aluminium Bekas, Info Terpopule…

46+ Trend Terpopuler Model Jendela Pintu Depan Rumah Minimalis

Model Pintu Minimalis 2021, Pintu rumah Minimalis, Model Pintu Minimalis dari kayu, Desain pintu rumah 2 pintu, Model jendela rumah minimalis, Pintu Rumah mewah, Model Pintu dan jendela Minimalis, desain jendela rumah minimalis modern minimalist design , Model Jendela …

Harga Daun Jendela Kaca Jendela Terpopuler!

Harga jendela kaca, Daun Jendela Minimalis, Daun jendela aluminium, Daun Pintu, Harga jendela aluminium, Harga jendela minimalis, Daun jendela adalah, Kusen jendela, Jendela kayu, Harga pintu, Jendela Kayu Klasik, Harga Pintu kayu, Harga Daun Jendela Kaca Jendela Terpo…

Populer 51 Jendela Kayu Rumah

Jendela Kayu Klasik, Jendela Minimalis, Jendela kayu Minimalis, Kusen jendela kayu, Model Jendela Kayu Tanpa Kaca, Kusen jendela aluminium, Jendela Minimalis Modern, Jendela Klasik, Kusen Jendela Minimalis, Gambar Jendela Kayu, Kusen jendela kamar, Model Kusen Pintu da…

Ide Terpopuler 29 Hiasan Jendela Dari Botol Bekas

Hiasan dari Botol Bekas, Hiasan Dinding dari barang bekas Kardus, Kreasi botol bekas air mineral, Ide Terpopuler 29 Hiasan Jendela Dari Botol Bekas - Jendela ialah komponen krusial dari sebuah ruangan atau tempat, hiasan jendela adallah salah satu item jendela berharg…

Model Jendela Rumah Mewah Minimalis Motif Masa Kini!

Model Jendela Minimalis 2021, Model Jendela Minimalis 2021, Model Jendela Aluminium rumah minimalis, Jendela rumah modern, Model jendela kamar, Model Jendela Minimalis 2021, Model jendela depan Rumah Minimalis, desain jendela rumah minimalis modern minimalist design , …

15 Konsep Populer Foto Teralis Jendela Minimalis

Teralis Jendela Minimalis 2021, Teralis Jendela Minimalis 2021, Teralis pintu Minimalis 2021, Katalog Teralis Jendela, Model teralis jendela, Model teralis jendela klasik, Harga teralis jendela minimalis, Teralis jendela Modern, Teralis jendela Murah, Teralis Pagar Min…

Konsep Populer 22 Kunci Jendela Geser

Kunci Jendela Kayu, Konsep Populer 22 Kunci Jendela Geser - Kunci Jendela yang di rancang dengan cerdik merupakan kunci untuk menciptakan rumah yang nikmat dan bergaya. Dengan penggunaan kunci jendela yang fleksibel tentunya menjadi sebuah alternatif untuk rumah yang …

52 Konsep Populer Harga Tirai Jendela

Tirai Jendela Roller Blind, Gorden Jendela kamar, Gorden jendela minimalis 2021, Tirai Gulung, Tirai jendela Kantor, Tirai Jendela minimalis, Gorden minimalis, Harga gorden, Tirai Jendela Tarik, Tirai Jendela Kayu, Gorden Jendela Minimalis 2021, HORDENG Jendela, 52 Kon…

48+ Trend Masa Kini Kusen Jendela Kayu Minimalis

Kusen Jendela Minimalis, Harga kusen jendela kayu kamper, Daun Jendela kayu, Kusen jendela aluminium, Jendela Kayu Klasik, Daun Jendela Minimalis, Harga jendela minimalis, Harga kusen jendela aluminium, Kusen jendela kamar, Harga jendela kaca, Pintu Minimalis, Kusen pi…

Harga Gorden Jendela Minimalis 2020 Terbaru!

Harga gorden per meter 2021, Gorden Jendela Minimalis 2021, Harga gorden per meter 2021, Harga Gorden jendela per meter, Gorden Jendela kamar, Model Gorden Jendela kecil panjang, Harga Gorden Jendela biasa, Gorden minimalis, Gorden jendela kantor, Gorden minimalis eleg…

Hiasan Jendela Dari Bahan Limbah Penting!

Cara membuat KERAJINAN tangan dari botol bekas yang mudah, Kerajinan tangan dari kertas, Contoh kerajinan, Hiasan Jendela Dari Bahan Limbah Penting! - Bagi orang orang dengan selera yang tinggi, terkadang menentukan hiasan jendela merupakan hal yang sangat sulit. Akan…

25+ Inspirasi Penting Jendela Kayu Band

25+ Inspirasi Penting Jendela Kayu Band - Bagi orang orang dengan selera yang tinggi, terkadang memutuskan jendela kayu yaitu hal yang sangat sulit. Akan muncul banyak pertimbangan saat memastikan jendela kayu yang dibutuhkan dan sesuai dengan selera. Padahal sebenarn…

24 Konsep Populer Tirai Jendela Doraemon

24 Konsep Populer Tirai Jendela Doraemon - Berbicara tentang tirai jendela efisien itu digunakan di rumah, kantor, ruang kerja, cafe ataupun warung , memang banyak sekali pilihanya. Selain itu berbagai model terkadang dapat mengalahkan kebutuhan. Misalkan tirai jendel…

24+ Jendela Kayu Kuno, Ide Spesial!

Jendela krepyak, Jendela kaca jadul, 24+ Jendela Kayu Kuno, Ide Spesial! - Memilih jendela kayu memang tidak mudah. Selain harus mencari yang berkualitas dan menyesuaikan ruangan yang Anda gunakan. jendela merupakan salah satu bagian yang sangat berguna yang diperluka…

42+ Kusen Jendela In English, Konsep Jendela Penting!

42+ Kusen Jendela In English, Konsep Jendela Penting! - Beberapa kusen jendela untuk mengaplikasikan keindahan dan kenyamanan dengan rancangan yang tepat dapat menginspirasi anda untuk memberikan gaya yang sedang trend atau populer. Banyak kalangan elok dari desa maup…

15 Konsep Populer Lebar Kusen Jendela Aluminium

Detail Jendela Aluminium, Ukuran kusen Aluminium per batang, Kusen Aluminium Alexindo, Tebal Kusen Aluminium YKK, Dimensi kusen Aluminium 3 inch, Harga kusen aluminium, Merk kusen aluminium yang bagus, Ukuran Aluminium batangan, Kusen Aluminium merk inkalum, Kusen pint…

15+ Ide Terkini Sebuah Jendela Kamar Berbentuk Persegi Panjang

15+ Ide Terkini Sebuah Jendela Kamar Berbentuk Persegi Panjang - Beberapa jendela kamar untuk mengaplikasikan keindahan dan keademan dengan rancangan yang tepat dapat menginspirasi anda untuk memberikan gaya yang sedang trend atau populer. Banyak kalangan indah dari d…

52 Terbaru Hiasan Jendela Kertas Origami

Hiasan gantung dari kertas, Cara membuat hiasan dari kertas origami, Cara membuat hiasan dinding dari kertas karton, Wall decor ideas hiasan dinding cantik dari kertas origami hiasan jendela, Hiasan dinding kelas, Keren cara membuat kreatif hiasan JENDELA, Origami hang…

Harga Kusen Jendela Dan Pintu Kayu Jati Jendela Terpopuler!

Pintu Kayu Jati Minimalis, Harga Pintu kayu jati, Harga Kusen pintu kayu, Pintu Jati Minimalis, Pintu Minimalis, Harga Pintu kayu mahoni, Harga pintu kayu kamper, Harga kusen pintu aluminium, Harga Kusen Jendela Dan Pintu Kayu Jati Jendela Terpopuler! - Memilih kusen …

Contoh Gambar Teralis Jendela Spesial!

Teralis Jendela Minimalis 2021, Teralis Jendela Minimalis 2021, Model teralis jendela klasik, Katalog Teralis Jendela, Teralis jendela sederhana, Harga teralis jendela minimalis, Teralis pintu Minimalis 2021, Teralis Jendela klasik modern, Model teralis pintu Minimalis…

42+ Hiasan Jendela Tirai, Konsep Jendela Penting!

42+ Hiasan Jendela Tirai, Konsep Jendela Penting! - Beberapa hiasan jendela untuk mengaplikasikan keindahan dan kenyamanan dengan rancangan yang tepat dapat menginspirasi anda untuk memberikan gaya yang sedang trend atau populer. Banyak kalangan elok dari desa maupun …

Ide Top 47 Gorden Jendela Tinggi

Ide Top 47 Gorden Jendela Tinggi - Jendela merupakan bagian krusial dari sebuah ruangan atau tempat, gorden jendela adallah salah satu item jendela pokok yang wajib dimiliki. Belilah gorden jendela di toko terpercaya anda, gorden jendela yang dirancang dengan cerdik y…

52+ Fungsi Kusen Jendela, Trend Masa Kini!

Kusen pintu, Kusen Aluminium, Prosesor adalah, 52+ Fungsi Kusen Jendela, Trend Masa Kini! - Salah faktor untuk keindahan rumah, ruang kerja atau kantor ialah di isi dengan berbagai jendela salah satunya adalah kusen jendela , tentunya haruslah jendela yang hanya kita …

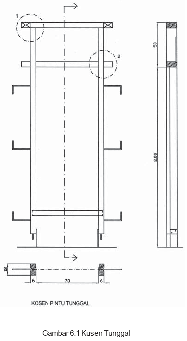
22+ Inspirasi Terbaru Kusen Jendela Tunggal

Kusen jendela aluminium, Kusen Jendela Minimalis, Kusen jendela kamar, Kusen jendela kayu, Model Kusen Pintu dan Jendela Minimalis, Harga kusen jendela aluminium, Daun Jendela kayu, Harga Kusen Pintu jati, Harga kusen 2 pintu Murah, Kusen pintu Kayu, Kusen Pintu Minima…

Populer 51 Kusen Jendela Sudut Minimalis

Ukuran Jendela Sudut, Jendela Minimalis, Gorden Jendela Siku, Rumah Minimalis, Pintu Minimalis, Populer 51 Kusen Jendela Sudut Minimalis - Kusen Jendela merupakan jendela yang memiliki peran cukup serius jika menempati sebuah rumah, kantor, atau ruangan tertentu. Bias…

53+ Stiker Jendela Masjid, Inspirasi Jendela Terpopuler!

53+ Stiker Jendela Masjid, Inspirasi Jendela Terpopuler! - Jendela adalah bagian krusial dari sebuah ruangan atau tempat, stiker jendela adallah salah satu item jendela signifikan yang wajib dimiliki. Belilah stiker jendela di toko terpercaya anda, stiker jendela yang…

52+ Harga Kaca Riben Jendela Rumah, Trend Masa Kini!

Harga kaca Aquarium, Daftar harga kaca Asahimas, Harga kaca jendela bermotif, Harga Kaca Cermin, Kaca Rayben, Harga kaca aquarium 10mm, Harga Kaca Cermin per meter, Harga Kaca Es, Daftar harga kaca Asahimas 2021, Harga Kaca Cermin Per Meter 2021, Harga kaca tempered 12…

Harga Jendela Aluminium Bandung Untuk Mempercantik Ruangan

Kusen aluminium Cimahi, Harga pintu aluminium, Toko Aluminium terdekat, Ukuran kusen aluminium, Harga Jendela Aluminium Bandung Untuk Mempercantik Ruangan - Berbicara tentang jendela aluminium rapi itu digunakan di rumah, kantor, ruang kerja, cafe ataupun warung , mem…

Model Kusen Jendela Minimalis Terbaru Penting!

Model Jendela Minimalis 2021, Jendela Minimalis Modern, Kusen jendela aluminium, Kusen jendela kamar, Model Pintu dan jendela Minimalis, Model Jendela Minimalis 2021, Kusen jendela kayu, Model Kusen Pintu dan Jendela Minimalis, Harga kusen jendela, Gambar Kusen Jendela…

Jendela Kamar Tidur Utama Minimalis Motif Masa Kini!

Jendela kamar tidur kecil, Jendela kamar Minimalis Modern, Jendela Kamar kayu, Jendela Kamar Tidur dalam, Jendela Minimalis, Model jendela kamar Minimalis, Jendela Kamar Tidur Sederhana, Ukuran Jendela Kamar minimalis, Jendela Kamar Tidur Utama Minimalis Motif Masa Kin…

17+ Ide Populer Contoh Jendela Rumah 2 Lantai

Model jendela kamar, Model Jendela Minimalis 2021, Gambar Jendela Kayu, Model Jendela Aluminium rumah minimalis, Jendela rumah modern, Harga jendela minimalis, desain jendela rumah minimalis modern minimalist design , Jendela kayu Minimalis, Jendela Dapur, Jendela kama…

30 Inilah Membuat Jendela Sliding

30 Inilah Membuat Jendela Sliding - Manusia sudah memanfaatkan aneka jendela sliding untuk mendukung aktivitas sehari hari yang dilakukan sejak zaman dahulu. Semakin maju peradaban, fungsi jendela sliding terus berkembang. Untuk itu bila memiliki jendela sliding, haru…

23+ Warna Cat Jendela Kayu, Inspirasi Spesial!

PERPADUAN Warna Cat Tembok dan kayu, Warna Cat Kayu, Kombinasi Warna Cat Kusen Pintu dan Jendela, Warna Cat Jendela yang Bagus, Warna Pintu Rumah Minimalis, Kombinasi warna cat rumah, Warna Cat Pintu Rumah, Cat pintu kayu yang bagus, Warna cat rumah minimalis, Cara men…

23+ Gambar Gorden Jendela Minimalis Modern, Inspirasi Spesial!

Model Gorden Jendela kecil panjang, Gorden minimalis elegan, Gorden Jendela Minimalis 2021, Gorden jendela minimalis 2021, Gorden Jendela kamar, Gorden minimalis modern, Model Gorden Cantik dan Mewah, Gorden tirai minimalis, Gorden minimalis polos, Gorden jendela kanto…

Konsep Penting 47 Grendel Jendela Dekkson

Konsep Penting 47 Grendel Jendela Dekkson - Berbicara tentang grendel jendela rapi itu digunakan di rumah, kantor, ruang kerja, cafe ataupun warung , memang banyak sekali pilihanya. Selain itu berbagai model terkadang dapat mengalahkan kebutuhan. Misalkan grendel jend…

52+ Gambar Jendela Jawa, Trend Masa Kini!

Gambar Jendela Minimalis, Gambar Jendela Kayu, Gambar Jendela Kartun, Model Jendela Minimalis 2021, Kusen jendela kamar, Kusen jendela aluminium, Kusen Jendela Minimalis, Model Kusen Pintu dan Jendela Minimalis Terbaru, Gambar Pintu, Jendela Minimalis Modern, Daun Jend…

Contoh Jendela Ruang Tamu Motif Masa Kini!

Model Jendela Minimalis 2021, Model jendela kamar, Model Jendela Minimalis 2021, Model Pintu dan jendela Minimalis, Harga jendela minimalis, Jendela kayu Minimalis, Model jendela kayu, Model Jendela Aluminium rumah minimalis, Model Jendela Minimalis 2021, Model Jendela…

42+ Gorden Untuk Jendela Dapur, Konsep Jendela Penting!

42+ Gorden Untuk Jendela Dapur, Konsep Jendela Penting! - Beberapa jendela dapur untuk mengaplikasikan keindahan dan kenyamanan dengan rancangan yang tepat dapat menginspirasi anda untuk memberikan gaya yang sedang trend atau populer. Banyak kalangan elok dari desa ma…

Cara Membuat Hiasan Jendela Dari Kertas Lipat Untuk Mempercantik Ruangan

Cara membuat hiasan dari kertas origami, Keren cara membuat kreatif hiasan JENDELA, Hiasan gantung dari kertas, Cara membuat hiasan dinding dari kertas karton, Wall decor ideas hiasan dinding cantik dari kertas origami hiasan jendela, Hiasan dinding kelas, Paper Flower…

15 Konsep Populer Model Jendela Minimalis Gambar

Model Jendela Minimalis 2021, Model jendela kamar, Model Jendela Minimalis 2021, desain jendela rumah minimalis modern minimalist design , Model Pintu dan jendela Minimalis, Model Kusen Pintu dan Jendela Minimalis Terbaru, Model Jendela Aluminium rumah minimalis, Gamba…

Ide Top 47 Harga Gorden Jendela Minimalis

Gorden jendela minimalis 2021, Gorden Jendela Minimalis 2021, Harga Gorden Jendela biasa, Harga Gorden jendela per meter, Gorden jendela polos, Gorden Jendela kamar, Gorden jendela kantor, Harga Gorden Jendela kecil panjang, Gorden minimalis, Gorden jendela minimalis m…

48+ Trend Masa Kini Gambar Jendela Geser

Jendela Sliding Aluminium, Jendela aluminium, Jendela Minimalis, Jendela kayu, Harga jendela aluminium, 48+ Trend Masa Kini Gambar Jendela Geser - Jendela merupakan komponen krusial dari sebuah ruangan atau tempat, jendela geser adallah salah satu item jendela relevan…

15 Konsep Populer Teralis Jendela.com

15 Konsep Populer Teralis Jendela.com - Kebutuhan manusia akan jendela teralis jendela sebagai pengisi interior tidak pernah berhenti. Anda juga harus paham tren jendela, karena produk ini menyesuaikan diri dengan perkembangan gaya interior yang tengah berlangsung. Se…

Model Jendela Kaca Kamar Mandi Jendela Terpopuler!

Jendela kamar Mandi Aluminium, Ventilasi kamar mandi, Jendela kamar tidur, Jendela Boven, Jendela Kamar kayu, Jendela Kamar Tidur dalam, Jendela kamar tidur kecil, Jendela kamar Minimalis Modern, Model jendela kamar Minimalis, Model Jendela Kaca Kamar Mandi Jendela Ter…